
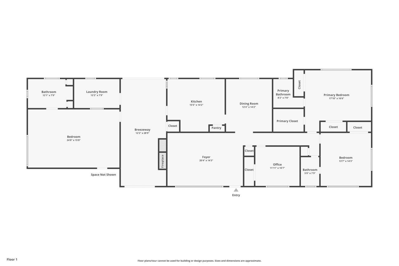
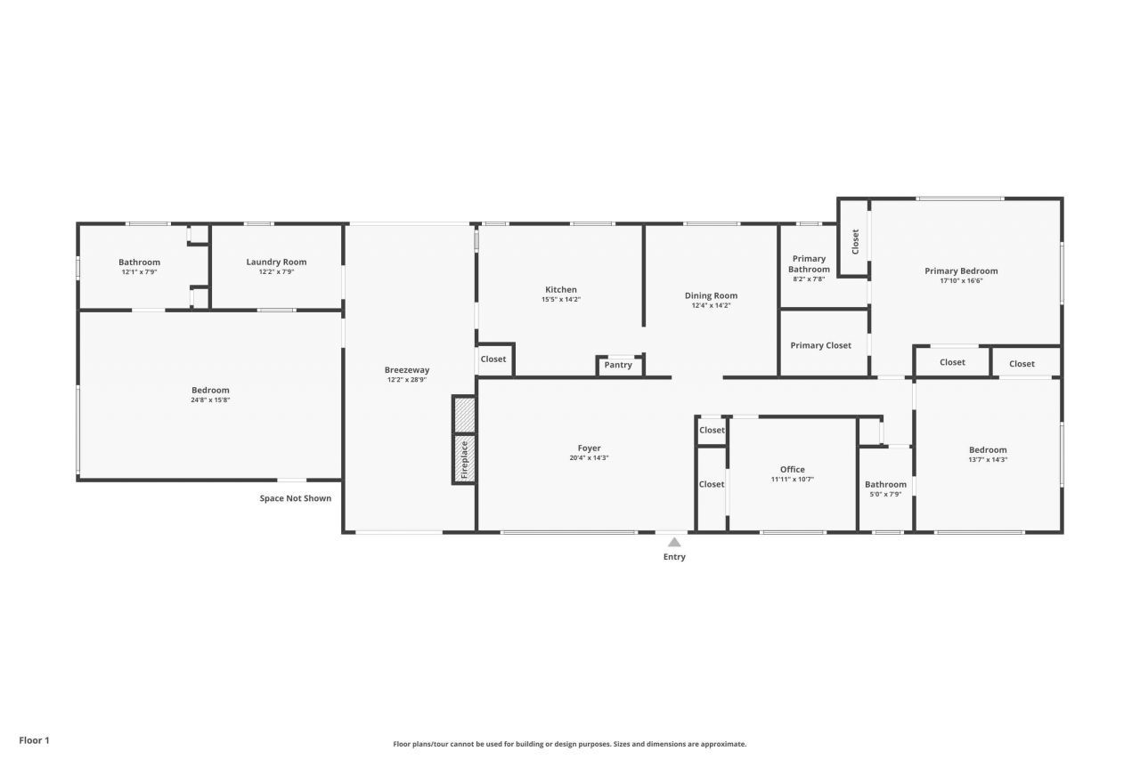
Rare 1.22 Acre Lot in Prime Tamarac Location! Exceptional opportunity for investors or developers. Zoned R-1 with Low 5 Residential overlay allowing for potential subdivision and up to 5 single-family homes per acre (subject to R-1 density limits and overlay compliance). Ideal for a builder looking to develop luxury homes in a growing area. Located near top schools, parks, shopping, and major highways for unmatched convenience and long-term value. Existing home also listed: see MLS#: RX-11106473...Rare 1.22 Acre Lot in Prime Tamarac Location! Exceptional opportunity for investors or developers. Zoned R-1 with Low 5 Residential overlay allowing for potential subdivision and up to 5 single-family homes per acre (subject to R-1 density limits and overlay compliance). Ideal for a builder looking to develop luxury homes in a growing area. Located near top schools, parks, shopping, and major highways for unmatched convenience and long-term value. Existing home also listed: see MLS#: RX-11106473.
View MoreCourtesy of
Agency Name: Ryan Critch Real Estate
Agency Phone: (954) 995-3422
Agent Name: Alexis Errante
Presented by
Agent Name: Yumi Pla
Agent Phone: 305.725.1246
Agency Title: The Keyes Company
Send an email with a link to
5250 Rock Island Road, Tamarac, FL 33319.
Email 5250 Rock Island Road, Tamarac, FL 33319
Thank you for your inquiry! As a thank you, we have a Special Mortgage Offer for You.
We would like to provide you a free, no-obligation, home loan pre-approval review.